固定床渣油加氫裝置由于具有很強的原料適應性和加工靈活性,能夠實現渣油的清潔高效利用,經濟效益高,是目前石化行業應用較多的渣油處理裝置,而且還在不斷新建。目前加氫裝置反應器大都以固定床反應器為主,也有少量的沸騰床、漿態床、液相加氫反應器。以固定床反應器為例,1個反應器從上到下至少有3個以上的床層測溫,每個床層最少需要5-10個測溫點,5Mt/a渣油加氫反應器甚至每一層會有24-26個測溫點。1個反應器中要裝幾十個測溫點,4個反應器中要裝上百個測溫點。由于反應器是高溫高壓容器,不宜開孔太多,普通的熱電偶已無法滿足要求,所以只能采用高溫高壓多點柔性鎧裝熱電偶來解決。催化劑床層的徑向溫差直接反映了反應器的運行狀態,現行生產過程要求床層溫度在反應器內均勻分布,并對每個測溫點進行實時監控。因此對反應器催化劑床層測溫元件的精度、可靠性、安全性提出了很高的要求。
本文就反應器催化劑床層測溫的重要性、目前加氫裝置高溫高壓多點柔性熱電偶的結構類型、使用中的一些問題進行了闡述,并提出了解決方案。
1、反應器催化劑床層測溫的重要性
1.1 測量徑向溫差
催化劑床層的徑向溫差一般不得大于床層高度直徑比的3.5倍,通常為3-7℃,以下幾方面原因可能導致溫差太大,此時須引起操作人員的注意,嚴重時需停工檢修。
1)催化劑裝填疏密度。
2)反應物偏流,進料量太低、分配盤泡罩堵塞、雜質堵塞催化劑縫隙。
3)冷氫箱噴嘴堵塞。
4)床層催化劑結焦、架橋。
5)測溫傳感器安裝高度有誤。
1.2 測量不同床層溫度形成溫度梯度
通過自上而下的溫度梯度來判斷反應的催化劑活性、原料性質、固定溫升等,溫升過高時需加大上層注冷氫量。
2、高壓多點柔性熱電偶技術要求
高壓多點柔性鎧裝熱電偶技術要求主要如下。
1)偶絲尺寸:單管單點不小于φ8mm,單管多點不小于φ10-φ16mm。
2)熱電偶分度號:K;結構為接地型或絕緣型,推薦使用絕緣型。
3)允差等級或精度:±1.5℃或±(t×0.4%),t為實際測量溫度,℃。
4)響應時間:輸出變化至階躍變化的63.2%時,所需時間不超過15s。
5)在鎧管內的多點熱電偶不得公用偶絲的正極或負極。
6)管束應限制在直徑為64mm(2.5″)的圓內,熱電偶鎧管應允許25mm的彎曲半徑。
7)熱電偶的連接法蘭、鎧裝層、T型支架、固定管卡、二次密封腔、二次密封腔的泄漏測壓口接口材質采用347牌號不銹鋼,熱電偶制造中使用的347牌號的不銹鋼應進行穩定熱處理。
3、高壓多點柔性熱電偶鎧管結構形式
按制造工藝分單管單點和單管多點。
1)單管單點是將1對偶絲、氧化鎂預填在保護管內經拉伸而成,成品熱電偶的鎧套外徑一般為φ8 mm。該結構的優點是安裝方便、損壞后可單獨更換,缺點是強度差、卸劑時易損壞、氧化鎂密度較小,鎧管破碎后易造成滲氫。
2)單管多點是將多對偶絲、氧化鎂預填在保護管內經擠壓而成,成品熱電偶的鎧管外徑一般為φ10mm。每根鎧管內不超過4個測溫點;鎧管外徑為φ13mm時,每根鎧管內不超過9個測溫點。T型梁結構每根鎧管內不超過2個測溫點。該結構的優點是強度高、卸劑時部件不易損壞、氧化鎂密度較大,鎧管破碎后不易造成滲氫;缺點是損壞后不能單獨更換。
4、高壓多點柔性熱電偶的測點布置方式
高壓多點柔性熱電偶的布置方式分為線性布置和環形布置:線性布置的優點是反應器內壁安裝支撐預埋件僅1塊,安裝簡單、強度高,卸劑時不易損壞熱電偶;缺點是測溫點少。環形布置的優點是測溫點多;缺點是反應器內壁安裝支撐預埋件多,需制造廠二次設計制作支架,安裝復雜、強度較低,卸劑時易損壞熱電偶。
4.1 線性布置方式
以T-型梁結構為代表,按反應器直徑又分為3點和6點測溫,3點的測點位置分別為反應器直徑的1/3,1/2,2/3;6點的測點位置分別為反應器直徑的1/7,2/7,3/7,4/7,5/7,6/7。其結構又分帶外套管和不帶外套管兩種。
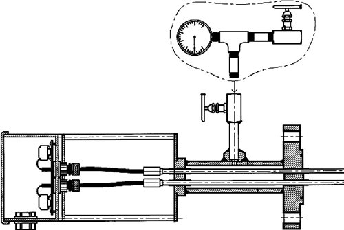
1)帶外套管的T-型梁結構熱電偶是將幾根端部帶堵頭的外保護管分別焊接在T-型鋼梁上,外套管另一端和T-型鋼梁均焊接在法蘭內面上,法蘭上布置與測溫點相同數量的鉆孔,填料函用于將熱電偶鎧管從法蘭外面插入外保護管內,并添加火山巖填料密封,幾個鎧管在法蘭外面分別用鎖緊螺母鎖緊,結構如圖1所示。由于外套管內設計為常壓,因而該位置鎖緊螺母并不承壓,當外套管因滲氫造成套管內帶壓,嚴重時將鎧管彈出造成無法測溫,氫氣泄漏又會帶來極大的安全隱患,在反應器直徑大于3200mm的場合,一般不推薦使用。

圖1 帶外套管T-型梁熱電偶
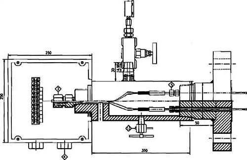
2)不帶外套管的T-型梁結構熱電偶是將幾根熱電偶鎧管分別直接焊接在T-型鋼梁上,鎧管另一端和T-型鋼梁均焊接在法蘭內面上,二次密封腔一側與法蘭外面焊接,熱電偶鎧管在二次密封腔接線箱側再次焊接,如圖2所示。該結構解決了外套管滲氫的問題,但因為鎧管直接和催化劑接觸,在卸劑時易損傷鎧管造成內漏,解決內漏的辦法通常是在鎧管的接線盒端增設密封堵頭,當發生內漏時將線纜剪斷,用堵頭堵死。

圖2 不帶外套管T-型梁熱電偶
4.2 環形布置方式
按反應器直徑可分為8,12,16,24點等,呈等面積布置;其結構又分焊接密封和填料加鎖緊螺母密封2種。
1)焊接密封是將若干根熱電偶鎧管的測量端分別用管卡固定在由制造廠配帶的鋼梁上,鎧管另一端焊接在法蘭內面上,二次密封腔一側與法蘭外面焊接,熱電偶鎧管在二次密封腔接線箱側再次焊接,結構如圖3所示。該結構優點是不會因鎧管移動造成大的泄漏和安全事故;缺點是損壞后不能單獨更換,整體吊裝安裝不方便,焊縫進行熱處理后會抵消應力,幾個開工周期內不會出現氫鼓泡、晶間開裂的現象。但如果焊縫熱處理不當以及諸如焊縫寬度、焊接電流、焊層多少等焊接要求不能滿足時,加上停工時的硫化氫腐蝕,可能會較早出現氫鼓泡、晶間開裂的現象,給生產帶來安全隱患。

圖3 焊接密封示意
2)填料加鎖緊螺母密封是將若干根熱電偶鎧管的測量端分別用管卡固定在由制造廠配帶的鋼梁上,鎧管另一端用石墨填料密封加壓緊螺母密封。在法蘭外面上焊接密封底座,密封底座上設置與二次密封腔連接的外螺紋接口和若干用于鎧管密封的內螺紋接口,結構如圖3所示。該接口與密封轉換接頭外螺紋端螺紋連接,建議現場采用密封焊,轉換接頭內螺紋端經填加石墨填料后用鎖緊螺母鎖緊,結構如圖4所示。該壓力等級只能達到PN70,熱電偶延伸線在二次密封腔接線箱側也采用填料和鎖緊螺母密封,結構如圖5所示,該壓力等級可達到PN320。該結構優點是損壞后能單獨更換、可拆解安裝,安裝方便;缺點是一旦填料老化就會嚴重影響密封造成泄漏,采用填料密封后經受不了拉力,由于反應器內鎧裝熱電偶與催化劑結焦成片、成塊,一旦反應器催化劑床層塌陷下沉時,會將熱電偶元件拉到反應器內,產生嚴重泄漏。2014年中石化某公司就出現過該事故,導致裝置被迫停工。

圖4 填料加鎖緊螺母密封示意

圖5 填料加鎖緊螺母密封總裝示意
5、渣油加氫反應器高溫高壓多點鎧裝熱電偶的研制
5.1 開發熱電偶套管合金材料
為解決多點鎧裝熱電偶在高溫高壓臨氫狀態下正常工作,解決347牌號不銹鋼是焊縫處容易高溫氫脆腐蝕和不耐硫化氫腐蝕的問題,開發了鎳、鉻、鉬、鈮、鉭、鋁、硅和微量稀土元素構成的新型不銹鋼材料,以提高高溫下的強度和耐高溫氫脆開裂及耐硫化氫腐蝕的性能。新材料以鉻、鈮、鉬、鉭為高溫基礎元素,特別提高了鉬元素比例,以鎳為平衡,鋁、鈮加鉭組合比例相應提高,鋁元素是抗硫和硫化氫腐蝕的理想材料。通過優化不銹鋼中各元素的組成,鎳鉻合金中所含的鉬、鈮固溶體強化效應,調整能形成穩定碳化物元素的比例,能夠降低碳氫化合反應和反應速率、減少氫溶解度和在鐵晶格中的擴散系數,這些元素也使該合金具有卓越的耐腐蝕特性。實驗證明:新材料制成的φ10mm鎧裝熱電偶套管,在1100℃高溫下仍有很高的強度、韌性和耐腐蝕性。
5.2 研制鎧裝熱電偶可拆卸結構
為解決焊接密封結構無法獨立更換熱電偶和填料加鎖緊螺母密封不可靠的問題,研制了多支鎧裝熱電偶與高壓法蘭連接采用可拆卸結構,密封方法采用高壓閥門結構原理,高壓閥門結構可拆卸裝配示意如圖6所示。考慮到高溫高壓下材料的膨脹系數,包括法蘭在內的各個部件分別采用不同材料,進行熱處理工藝,優化材料性能,高壓焊接式結構裝配示意如圖7所示。

圖6 高壓閥門結構可拆卸裝配示意

圖7 高壓焊接式結構裝配示意
5.3 熱電偶鎧管制作工藝的改進和檢驗
5.3.1 鎧裝制作工藝的改進
為了解決單管多點組合鎧裝熱電偶容易產生內漏問題,研制了單管多點實芯鎧裝熱電偶。按不同數量要求制作氧化鎂瓷珠;將各點長度與偶絲直徑正確計算,制成裸體熱電偶,定位穿入大直徑氧化鎂瓷珠,再將穿好瓷珠的熱電偶塞入不銹鋼管內,擠壓變徑成型。改進后的單管多點實芯鎧裝熱電偶與常規方法制做的鎧裝熱電偶相比,同樣直徑的產品,保護管壁壁厚增加了一倍,偶絲直徑增加了5倍,管內填料致密性高,套管不封閉耐壓可達100MPa而不內漏。綜合性能:強度高、測溫范圍大、各測溫點分離絕緣、極高的致密性,使用周期均大幅延長。
5.3.2 鎧裝熱電偶鎧管表面處理
為了進一步延長鎧裝熱電偶的使用壽命,在φ6mm以上、鎧管壁厚1.0mm以上的鎧裝熱電偶表面復合一層抗氫脆、耐腐蝕的保護層,通過加熱、溶解、擠壓等工藝,使保護層與鎧裝基體冶金結合。這種保護層能有效隔絕介質與基體的直接接觸,可以更加延長鎧裝熱電偶的使用壽命。
5.3.3 壓力試驗
為保證產品的密封性,增加了密封部件的氣密性試驗和高溫高壓型試驗:
1)常溫氣密性測試裝置。試壓氣源:氦氣;指標:耐壓30MPa,保壓1h無泄漏,則為合格。
2)高溫高壓型試驗。試壓介質:高溫導熱油;指標:溫度450℃、壓力50MPa,保壓12h無泄漏,則為合格。
3)二次密封腔耐壓測試。試壓介質:水;溫度:常溫;耐壓30MPa,保壓1h無泄漏,則為合格。
5.3.4 高溫高壓多點鎧裝熱電偶的技術指標
高溫高壓多點鎧裝熱電偶的技術指標如下:
1)溫度范圍:0~800℃,極限1000℃。
2)耐壓能力:常溫,一次密封耐壓100MPa,二次密封耐壓30MPa。
3)使用場合:所有加氫反應器、高溫高壓、臨氫、腐蝕性環境。
6、結束語
加氫反應器多點鎧裝熱電偶因技術要求高,長期以來被國外品牌壟斷,特別是高溫高壓渣油、蠟油加氫裝置反應器更是如此。
通過中國石油化工股份有限公司金陵分公司、中石化洛陽工程有限公司與儀表廠聯合攻關,經反復多次試制、實驗,研制出了具有自主知識產權的渣油加氫多點高壓鎧裝熱電偶,產品經中石化金陵石化分公司1.80Mt/a渣油加氫裝置第四反應器使用,在溫度385℃,壓力18.5MPa,5.5kt/d處理量狀態下,效果達到設計要求。
